Projects
About
Press
Contact
ionicons-v5_logos
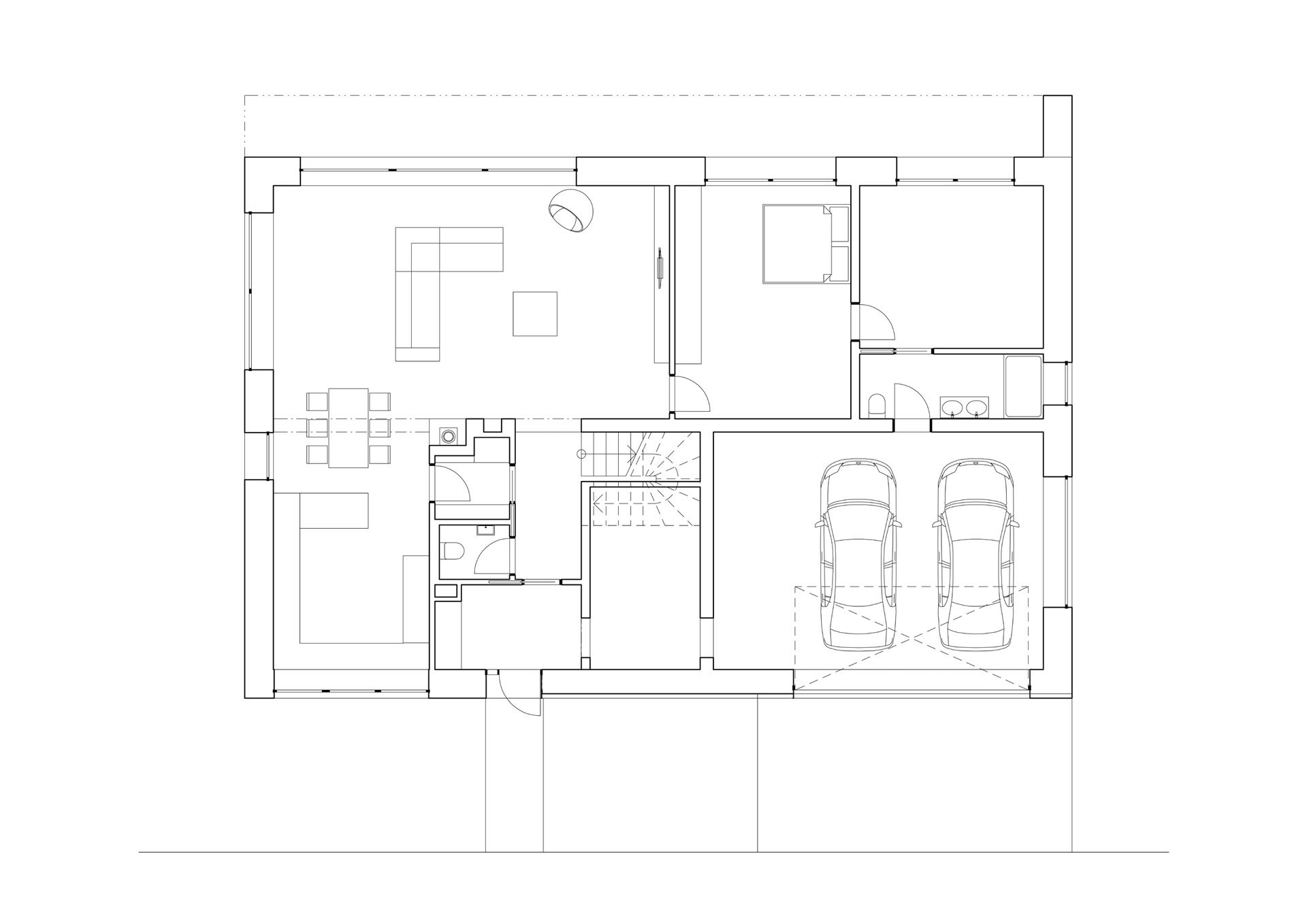
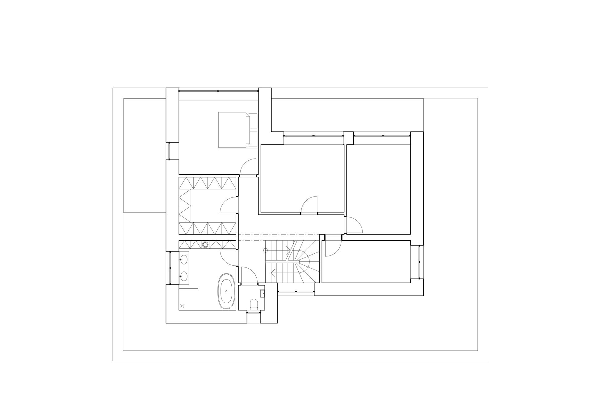
RDB
Studie rodinné vily v obci Březová.
HPP 360 m2